土地
11409 平方英尺
(1,060平方米)
无
2025年09月30日
已上市 19 天
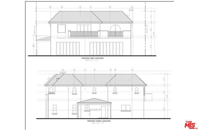
A rare Mediterranean estate opportunity awaits in the prestigious Beverly Hills Flats. Situated on one of the most desirable tree-lined streets, this exceptional parcel is being offered with approved plans and permits, allowing for the immediate construction of a timeless 9,506sqft residence. The proposed design showcases the elegance of Mediterranean architecture, blending classic sophistication with modern amenities. The estate features grand formal living and dining rooms, expansive family spaces, and walls of glass that open to showcase indoor-outdoor living at its finest. Plans call for resort-style amenities, including a pool, spa, outdoor kitchen, multiple terraces, and generous entertaining spaces throughout. With every detail thoughtfully conceived, from a custom wine cellar and chef's kitchen to seamless indoor/outdoor transitions, this home promises a lifestyle of luxury and refinement. Just moments from world-class shopping and dining on Rodeo Drive and Canon Drive, the property offers both prestige and convenience. This is a land-only sale with plans and permits included, an opportunity to save years of time and expense while creating a distinguished Mediterranean dream estate in Beverly Hills' most sought-after neighborhood.
中文描述选择基本情况, 帮您快速计算房贷
除了房屋基本信息以外,CCHP.COM还可以为您提供该房屋的学区资讯,周边生活资讯,历史成交记录,以及计算贷款每月还款额等功能。 建议您在CCHP.COM右上角点击注册,成功注册后您可以根据您的搜房标准,设置“同类型新房上市邮件即刻提醒“业务,及时获得您所关注房屋的第一手资讯。 这套房子(地址:503 N Elm Dr Beverly Hills, CA 90210)是否是您想要的?是否想要预约看房?如果需要,请联系我们,让我们专精该区域的地产经纪人帮助您轻松找到您心仪的房子。