6012 La Jolla Mesa,
La Jolla, CA 92037
在售房 $12,995,000 ($1,299.5万)
卧室: 6 浴室: 6.5 / 独立屋
房屋信息

独立屋

8003平方英尺
(744平方米)

26572 平方英尺
(2,469平方米)

2026 年

1

11 停车位

冷: CA,ZN

暖: GAS,ZN,FA

2025年10月03日
已上市 15 天

地产编号: 250040793SD
所处郡县: SD
建筑风格: MOD
面积单价:$1623.77/sq.ft ($17,478 / 平方米)
家用电器:DW,GD,MW,DO,FZ,BBQ,BI
车位类型:GP,DY
房屋简介

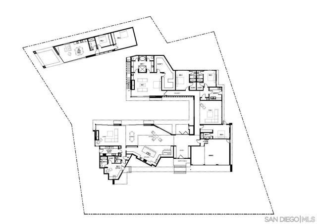
*** Currently Nearing Final Stages of Construction*** Discover a rare opportunity to own a brand-new, architecturally striking single-level gated estate in the Muirlands of La Jolla. Designed for effortless indoor-outdoor living, this expansive U-shaped residence spans over 8,003 sq ft and wraps around a stunning outdoor courtyard with a gorgeous, manicured olive tree and firepit conversation area that flows into a spacious yard with a resort-style pool, spa, and built-in BBQ area. The estate is perched on a private, .63-acre gated lot, capturing views of the ocean, bay, and downtown San Diego. Inside, soaring 14-foot ceilings and an open floor plan create a sense of volume and elegance throughout the space. The main house features 5 bedrooms, 5.5 baths and 6800 sqft with a great room, media/family room, and an incredible primary suite with his and hers oversized closets. A separate 1200 sqft ADU/Guest House offers flexibility for guests or multi-generational living, and a 3-car garage completes this extraordinary property. Home will be wrapped in travertine stone, neutral finishes with white-oak flooring, Porcelenosa tile, and soft pallets throughout. Hollywood hedges offer to total privacy and seclusion. Enjoy entertaining on your expansive roof top deck with a full outdoor kitchen and views of downtown San Diego and the Pacific coastline. You have never seen a single level estate living like this! Now is the time to solidify your brand-new luxury home purchase. Please call agents directly for a private tour or further information.

中文描述

选择基本情况, 帮您快速计算房贷

$
$
%
%
查看更多利率
每月还款额:
参考首付:
利息总金额:
剩余总金额:
花费总金额:
查看更多贷款信息
想要看房?
联系客服: