1205 N Beverly Glen Bl,
Los Angeles, CA 90077
在售房 $849,000 ($84.9万)
卧室: 1 浴室: 1 / 独立屋
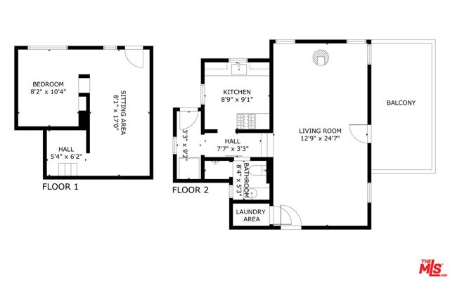
房屋信息

独立屋

882平方英尺
(82平方米)

16893 平方英尺
(1,569平方米)

1937 年

1

冷: CA

暖: CF

2025年09月25日
已上市 30 天

地产编号: 25588427
所处郡县: LA
建筑风格: BNG
面积单价:$962.59/sq.ft ($10,361 / 平方米)
家用电器:RF
车位类型:ST
房屋简介

Presenting an idyllic, secluded urban retreat nestled high in the scenic hills of Bel Air. A creative haven once the home of renowned painter, sculptor, and surfboard designer Frederick Wardy. Crowning a near 1/3 acre lot, the home resides in divine harmony with its vast, verdant, organic environment. Private. Tranquil. Serene: The epitome of peaceful seclusion in complete unison with nature. Boundless, breathtaking views of the surrounding canyon are showcased from every vantage point. This 1930's California bungalow has been updated with the design and amenities for easy relaxed living and entertaining. Vaulted beamed ceilings of the living room soar above beautiful wood floors warmed by a floor to ceiling fireplace. French paned doors and windows throughout bring the outdoors in and suffuse the space in natural light. The crisp, bright kitchen features a breakfast nook, perfect for relaxed morning coffee. The string lit covered patio lends itself ideally to the southern California lifestyle of al fresco dining and limitless outdoor entertaining all while taking in the extraordinary vistas. The home enjoys easy access to both the Westside and the Valley and is located just minutes from Sunset Blvd., UCLA and all the best of what famed Bel Air has to offer. With its blend of history, modern updates, and sublime hillside setting, this property is a valued opportunity to enjoy privacy and quietude in one of Los Angeles' most iconic neighborhoods. Welcome!

中文描述

选择基本情况, 帮您快速计算房贷

$
$
%
%
查看更多利率
每月还款额:
参考首付:
利息总金额:
剩余总金额:
花费总金额:
查看更多贷款信息
想要看房?
联系客服: