2410 Nichols Canyon Rd,
Los Angeles, CA 90046
在售房 $4,495,000 ($449.5万)
卧室: 4 浴室: 4 / 独立屋
房屋信息

独立屋

4008平方英尺
(372平方米)

18135 平方英尺
(1,685平方米)

1939 年

3

8 停车位

暖: CF

2025年10月27日
已上市 88 天

地产编号: 25611141
所处郡县: LA
建筑风格: TRD
面积单价:$1121.51/sq.ft ($12,072 / 平方米)
家用电器:DW,GD,RF,GO
车位类型:STOR,CIRC,COVP,GA,GDO,TODG,ST,GU,DCON
所属高中:

所属初中:

所属小学:

房屋简介

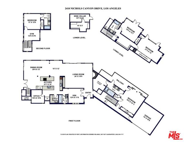
Tucked away among the trees on coveted lower Nichols Canyon Road in the Hollywood Hills, this exquisite traditional residence offers nearly 4,000 square feet of refined living space on an expansive 18,000 square-foot lot. With 4 bedrooms, 4 bathrooms, and a dedicated office, the home balances gracious scale with intimate warmth. A pool and spa are perfectly framed by lush greenery, while fencing ensures the utmost privacy. This magical setting is designed to inspire both serenity and joy. From the moment you enter, walls of glass draw the eye outward to captivating views of nature, where sunlight filters through a canopy of mature trees. The spacious living room features newly installed wide-plank hardwood floors, a fireplace, and a built-in bar. An inviting backdrop for gatherings. Flowing seamlessly into the dining room and a spectacular chef's kitchen, the open-concept design creates an effortless atmosphere for entertaining. Completed in 2022, the kitchen is a dream, with a dramatic waterfall quartz island, professional-grade stainless steel appliances, abundant custom cabinetry, and a cooktop thoughtfully positioned to allow the host to engage with guests.The main-level primary suite offers a private deck with verdant vistas and a luxuriously renovated bath with spa tub, separate shower, and dual sinks. On the lower level, two generously sized bedrooms with private patios are connected by a cozy library nook, while a discreetly concealed 800-bottle wine cellar adds a touch of indulgence. For the ultimate in flexibility, a private upstairs wing includes a guest suite with bath and a gym or office space. Outdoors, the property transforms into a secluded wonderland. Towering oaks, fruit trees, and climbing vines surround the pool and spa, creating an enchanting natural sanctuary where the sounds of wildlife become part of the charm.Peace of mind comes with thoughtful upgrades, including a whole-house generator, roof sprinklers, alarm system, new pool plaster and systems, central HVAC, and a recently replaced sewer line. Just minutes from hiking trails yet nestled in an idyllic setting, this Nichols Canyon retreat is a rare opportunity to enjoy both immersion in nature and proximity to the city. A timeless estate that feels worlds away.

中文描述

选择基本情况, 帮您快速计算房贷

$
$
%
%
查看更多利率
每月还款额:
参考首付:
利息总金额:
剩余总金额:
花费总金额:
查看更多贷款信息
想要看房?
联系客服: